АКЦИЯ -40%
 
КОНСТРУКЦИИ
ЖЕЛЕЗОБЕТОННЫЕ
В REVIT
СОЗДАНИЕ РД РАЗДЕЛА КЖ
ПРОЦЕСС В REVIT
ПОЛУЧАЕМ
Создание опалубки
Армирование
Сетки
Разрезы
Ведомости
Оформите заказ и получите подарки:
Курс "Полный разбор шаблона для КЖ"
Курс "Расчеты в ROBOT STRUCTURAL ANALYSIS "
26 000 ₽
15 600 ₽
ТЕМ, КТО ПЕРЕХОДИТ НА REVIT...
Многие организации сейчас директивно переводят на Revit. Но проектировщикам перестроится не так-то просто, потому что Revit – это программа с абсолютно иной логикой работы нежели AutoCAD. Разобраться в ней самостоятельно, в короткий срок, очень сложно. Особенно, когда речь идет об армировании. На это придется потратить многие месяцы.

И мы решили потратить это время вместо вас и разработать видеокурс по полному циклу разработки рабочей документации разделов и КЖ на примере многоэтажного жилого дома из монолитного железобетона.
ВСЯ СУТЬ КУРСА ЗА 4 МИНУТЫ
СОДЕРЖАНИЕ КУРСА
РАЗДЕЛ №1
ПОДГОТОВКА К СОЗДАНИЮ ПРОЕКТА
Разберемся, как качественно подготовиться к выполнению рабочей документации в Revit, что такое пилотный проект. Изучим объект моделирования и создадим сетки осей и уровни для него.
Здесь мы займемся созданием монолитного ростверка, разберемся с моделированием мест переходов, а также быстро создадим подготовку. Далее создадим свайное поле и объединим с подготовкой и ростверком.
МОНОЛИТНЫЙ РОСТВЕРК И СВАЙНОЕ ПОЛЕ
РАЗДЕЛ №2
РАЗДЕЛ №3
КАРКАС НИЖЕ 0.000
В данном разделе разберем моделирование стен и пилонов, разберемся с основными нюансами. После этого создадим отверстия в стенах. Смоделируем перекрытие, а также отверстия в нем.
Кликните чтобы увеличить скриншот
Кликните чтобы увеличить скриншот
РАЗДЕЛ №4
ВХОДНАЯ ГРУППА
Создадим фундамент входной группы, тщательно продумаем концепцию моделирования сложных объектов в Revit. Разберем 2 способа моделирования входной группы, выберем оптимальный.
РАЗДЕЛ №5
КАРКАС ВЫШЕ 0.000
Кликните чтобы увеличить скриншот
Кликните чтобы увеличить скриншот
В данном разделе нам предстоит создать множество различных конструкций. Двигаясь поэтапно, смоделируем перекрытие 1-го этажа, перекрытия козырьков, каркас 2-го этажа, перекрытие 2-го этажа. Далее разберем процесс создания 3-9 этажей путем копирования типового (2-го этажа). Уделим внимание стенам, пилонам и перекрытиям чердака, а также стенам и перекрытию лифтовой шахты.
Очень подробно остановимся на лестничных маршах и площадках (разберем варианты создания с аналитической моделью и без нее).
РАЗДЕЛ №6
ПОДГОТОВКА К СОЗДАНИЮ ПРОЕКТА
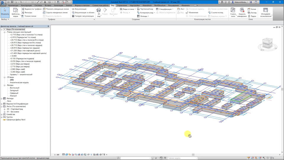
После того, как мы целиком сформировали модель здания, нам необходимо заняться организацией видов и листов для того, чтобы впоследствии комфортно формировать комплекты. В данном разделе мы организуем диспетчер проекта и сформулируем основные концепции формирования чертежей марки КЖ в Revit.
Кликните чтобы увеличить скриншот
Кликните чтобы увеличить скриншот
РАЗДЕЛ №7
КОМПЛЕКТ КЖ0.1 - СВАЙНОЕ ПОЛЕ
Создадим схему расположения свайного поля, разберемся с условными обозначениями свай. Также уделим внимание отображению скважин и точек зондирования не только на виде, но и в легенде. Обсудим возможные способы создания узлов в Revit применительно к комплектам марки КЖ. Далее создадим параметрическое 2D-семейство для узла заделки сваи в ростверк. После всего это сформируем лист комплекта.
РАЗДЕЛ №8
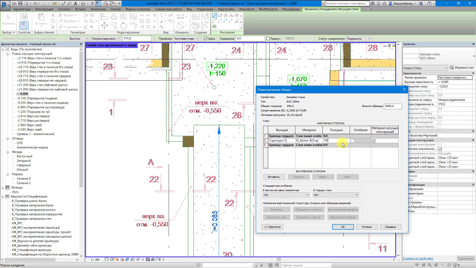
КОМПЛЕКТ КЖ0.2 - РОСТВЕРК
Кликните чтобы увеличить скриншот
Сформируем опалубочный чертеж по монолитному ростверку, затем разберемся со схемами расположения нижнего, верхнего и дополнительного армирования. Создадим схему расположения дополнительных арматурных элементов и схему расположения выпусков. После чего должное внимание уделим арматурным сечениям и узлам. Научимся создавать каркасы и их разрабатывать. А также оформим все это на листах комплекта.
РАЗДЕЛ №9
КОМПЛЕКТ КЖ0.3 - КАРКАС НИЖЕ 0.000
Кликните чтобы увеличить скриншот
Создадим схему расположения, виды к ней и маркировочную схему. Оформим арматурные узлы и сечения по стенам. Также займемся чертежами по колоннам и пилонам. И, как обычно, в конце сформируем необходимые спецификации, ведомость деталей и ведомость расхода стали. Оформим все это на листах.
Кликните чтобы увеличить скриншот
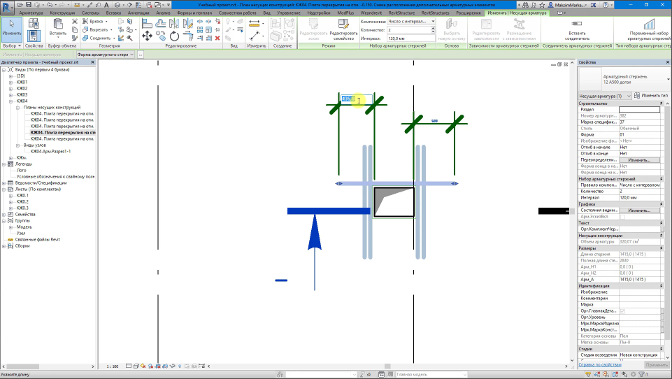
РАЗДЕЛ №10
КОМПЛЕКТ КЖ0.4 -
ПЛИТА ПЕРЕКРЫТИЯ НИЖЕ 0.000
Начнем с опалубочного плана плиты, затем перейдем к схемам расположения основного и дополнительного армирования. Создадим необходимые сечения по плите перекрытия, после чего сформируем спецификации и оформим все это на листах комплекта.
Кликните чтобы увеличить скриншот
РАЗДЕЛ №11
КОМПЛЕКТ КЖ0.5 - ЛЕСТНИЦЫ НИЖЕ 0.000
В данном разделе создадим схему расположения лестницы, все необходимые разрезы. После этого детально разберем армирование лестничного марша и приступим к созданию необходимых спецификаций и ведомостей. В конце оформим все это на листах комплекта.
Кликните чтобы увеличить скриншот
РАЗДЕЛ №12
РАЗДЕЛ №12. НЮАНСЫ ФОРМИРОВАНИЯ КОМПЛЕКТОВ КЖ1.*
В данном разделе мы обсудим вопросы, которые могут возникать при формировании того или иного комплекта выше 0.000. Начиная от того, как избежать создания ненужных разрезов на уже созданных видах, и заканчивая тем, как собрать арматуру только в рамках нужных конструкций. Таким образом, пробежимся по каждому из комплектов, повторим пройденное и поэкспериментируем. После всего этого подведем итоги курса.
Кликните чтобы увеличить скриншот
Оформите заказ и получите подарки:
Курс "Полный разбор шаблона для КЖ"
Курс "Расчеты в ROBOT STRUCTURAL ANALYSIS "
26 000 ₽
15 600₽
БОНУСЫ
БОНУС №1.
ПОЛНЫЙ РАЗБОР ШАБЛОНА
ДЛЯ КЖ

Полный видео разбор шаблона - стандарта отрасли BIM 2.0. Этот шаблон собирает в себе множество преднастроек, которые призваны облегчить вашу работу и оформить ваш проект по всем современным нормам и правилам отрасли.
БОНУС №2.
Этот курс является введением в современные методы (статического и динамического) расчета и анализа строительных конструкций в Robot Structural Analysis. Robot имеет двухстороннюю связь с Revit, поэтому использование данной связки будет наиболее эффективно и удобно.
РАСЧЕТЫ
В ROBOT STRUCTURAL ANALYSIS
ВАШЕ РЕЗЮМЕ ПОСЛЕ ПРОХОЖДЕНИЯ КУРСА
Уверенный пользователь Revit
Владение Robot Structural Analysis
Разработка BIM-моделей
Разработка аналитических моделей
Полный цикл проектирования раздела КЖ
Умение работать с шаблоном-стандартом отрасли
АВТОРЫ
Автор и ведущий курса:
Соавтор и редактор курса:
Максим Маркевич
Алексей Меркулов
BIM-менеджер ООО «Бетолит»

Инженер-программист ООО «Kinross Research»

Автор курсов: «Блоки и поля в AC»,
«Программирование С# AutoCAD API», «Основы BIM-проектирования»

Основатель школы
«Проектирования, моделинга и визуализации»

Автор 17 курсов по CAD/BIM/архивиз
НАШИ КУРСЫ ПОМОГЛИ ТЫСЯЧАМ
СПЕЦИАЛИСТОВ ПО ВСЕМУ МИРУ
1000 +

Стоимость:

Уроки курса записаны в Revit 2017, но курс подходит и для любой другой версии программы, начиная с Revit 2013
+ 2 видеокурса
в подарок
уроков
162
доступ к курсу
поддержка кураторов
365 дней
* Рассрочка от банка Тинькофф

2 600 ₽
рублей/
6 месяцев
Беспроцентная рассрочка на 6 месяцев.
15 600 ₽ при единовременной оплате
26 000 ₽
ДОСТУПНЫЕ
СПОСОБЫ ДОСТАВКИ

ОНЛАЙН ВЕРСИЯ
с доступом через
личный кабинет
Сразу после оплаты вы получите письмо
с доступом к изучению видео курса.
Доступ неограничен по времени.
ТЕХНИЧЕСКИЕ
ХАРАКТЕРИСТИКИ КУРСА
РАЗРЕШЕНИЕ УРОКОВ HD
Курс записан в высоком
разрешении FULLHD 1980*1080, что обеспечивает четкость изображения на мониторе и допустимый размер на планшете.
СОВМЕСТИМОСТЬ С ЛЮБОЙ ОС
Курс можно изучать как на системе Windows, так и на системе OS X (Mac OS).
ВЕРСИЯ И СОВМЕСТИМОСТЬ
Уроки курса записаны в Revit 2017, но курс подходит и для любой другой версии программы, начиная с Revit 2013.
ОБЪЕМ И ФОРМАТ
Количество уроков 162 шт.
Продолжительность 27 часов
Общий объём курса 12 Гб
Формат видеоуроков MP4
ТРОЙНАЯ ГАРАНТИЯ ВОЗВРАТА ДЕНЕГ В ТЕЧЕНИЕ 14 ДНЕЙ ПОСЛЕ ОПЛАТЫ
Если вы не получите результат, мы вернем вам деньги!
Если вы добросовестно прошли весь курс, выполнили задания, но не получили результат, мы вернем вам 100% стоимости курса!
Если вы посчитали, что информация для вас неактуальна, мы вернем вам 100% стоимости курса!
Если вам вообще хоть что-нибудь не понравилось, мы вернем вам 100% стоимости курса!
АКТУАЛЬНЫЕ ВОПРОСЫ
Смогу ли я освоить данный видеокурс?
Курс рассчитан как для опытных, так и для начинающих пользователей.
Что делать, если в процессе обучения у меня возникнут вопросы?
Вы можете обращаться в нашу службу поддержки клиентов merkulov@autocad-specialist.ru
Если меня что-то не устроит, как мне вернуть деньги?
Вы можете обращаться в нашу службу поддержки клиентов merkulov@autocad-specialist.ru
В какой версии программы Revit записан видеокурс?
Уроки записаны в Revit 2017, но курс подходит и для любой другой версии программы, начиная с Revit 2013
Я не из России, могу ли я купить ваш курс?
Да, можете. Доступные способы оплаты для вас: Карты Visa | MasterCard | Maestro, Яндекс.Деньги, WebMoпey R или Z, Visa QIWI Wallet (кошельки, терминалы), Денежные переводы или Paypal. Доставка закачкой по Интернет или почтой на флешке.
Ограничено ли количество устройств, на которых я могу изучать курс?
Да, курс можно запускать на 5 различных устройствах.
Безопасно ли оплачивать курс кредитной картой?
Да, это абсолютно безопасно. У нас заключены договоры с проверенными и надежными платежными системами, такими как ROBOKASSA, Яндекс Касса, через которые и идет приём ваших платежей.
Не нашли ответ на свой вопрос?
Обратитесь к нашему онлайн-консультанту. Кнопка онлайн-консультанта расположена в нижнем правом углу страницы. Либо вы можете написать в нашу службу поддержки по адресу: merkulov@autocad-specialist.ru
Предоставляете ли вы программу на время обучения?
Нет, программу вы устанавливаете сами. Мы не предоставляем доступ к ПО. Если вы студент, то можете скачать студенческую версию программы с официального сайта.
Все права защищены.
Учебный центр AMS³ © 2010–2020
Проектирование | Моделинг | Визуализация
Использование текстов и изображений
с данной страницы без письменного разрешения правообладателя запрещено.
8 800 200 05 18
merkulov@autocad-specialist.ru
Режим работы: пн — пт
10:00 — 18:00 по МСК
Информационная поддержка
Мы в социальных сетях